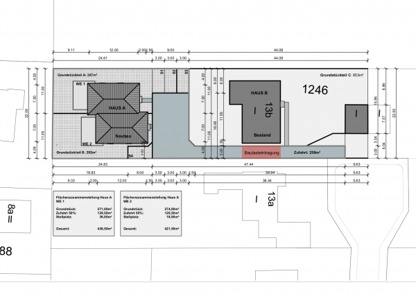
Sanierung eines Einfamilienhauses und Neubau eines Doppelhauses auf dem hinteren Grundstück

Sanierung eines Einfamilienhauses und Neubau eines Doppelhauses auf dem hinteren Grundstück

  • Fertigstellung: 2020
zurück